La adquisición de una finca rustica
en los Montes de Toledo es el origen de este proyecto. El objetivo realizar una
vivienda unifamiliar situada en un paraje natural prácticamente intacto.
El punto de partida define
las características a desarrollar en esta casa, la convivencia con la naturaleza
a través de la dehesa como una forma ancestral heredada de equilibrio entre el
ser humano y el medio natural productivo.
La implantación tenía por
tanto unas premisas claras.
Intentar modificar lo menos
posible el entorno con una casa integrada y que cumpliera los requisitos para
una vida cómoda como residencia de descanso.
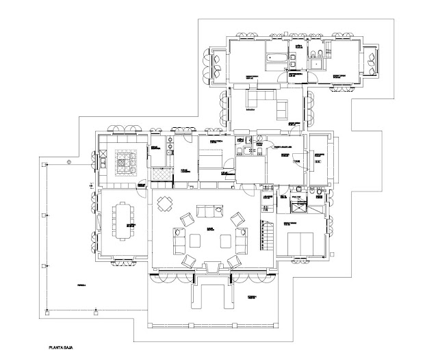
El proyecto desarrolla un programa bastante sencillo para una familia con tres hijos, donde no hay lugar para espacios superfluos, este mismo esquema solicitado es el que resuelve la distribución de esta casa.
En la planta baja las zonas
de estar con un salón grande, unido al espacio del comedor, abierto al campo mediante un porche como
espacio de transición.
Las zonas de dormitorios de
niños se organizan orientadas hacia el levante con una sala para juego y
estudio desde al que se accede a los cuartos.
Hacia el norte la zona de
servicio y cocina.
La planta alta se comunica a
través de una galería abierta al salón del salón donde se encuentra la escalera
de acceso.
En esta planta se sitúa el
dormitorio principal con un estudio y un estar y un dormitorio de invitados.
La distribución se realiza
sin pasillos ni corredores.
Las habitaciones están comunicadas
desde las zonas de estar de los distintos usos para crear una casa abierta al
campo, las zonas de la casa se convierten de esta forma en una secuencia de
espacios donde la relación con el exterior es constante.
Esta idea de integrar el
edificio en el entorno necesita un componente se refuerza con los volúmenes del edificio y
los materiales de construcción de la casa.
Los promotores plantearon la
idea de un edificio algo más orgánico huyendo de una implantación racional, lo
cual supuso la utilización de distintos volúmenes que son reflejo de los distintos
espacios interiores de la vivienda.
A pesar de que la casa no
tiene un tamaño excesivo el proyecto es bastante heterogéneo lo cual consigue
un edificio integrado en el entorno.
El diseño del interior de la vivienda está realizado con forjados de tablazón de madera y solerías de barro, utilizando morteros de cal en los revestimientos de las paredes de las zonas más amplias, así como la utilización de materiales de recuperación como las puertas de paso y elementos de piedra como columnas y dinteles.
Se optó por un invariable de la zona, el mampuesto mudéjar toledano.
Se ha utilizado un ladrillo
de tejar macizo con tonalidades de marrones ocres y rojizos de un tamaño
pequeño.
Las zonas de relleno se
revocan con un mortero de cal hecho con una mezcla de tierras de la zona. Un
trabajo de cierto mérito que no ha dejado de utilizarse en la arquitectura
tradicional de esta parte de España.
El resultado, a pesar de su simplicidad, es un edificio perfectamente integrado en el paisaje, hasta tal punto que apenas resulta perceptible desde los caminos de acceso.
Apenas se ha modificado el
terreno circundante y la actuación sobre el arbolado y la vegetación existente se
ha limitado a la tala y mantenimiento de la dehesa.
LOS PLANOS
LA OBRA.
EL FINAL.










































Podría saber el coste aproximado de una obra como esta?
ResponderEliminar